火鍋是地地道道中國獨創的美食,擁有悠久的歷史文化,是一種老少皆宜的食物,尤其是在成都和重慶等地最受美食者喜愛。那么怎樣才能原地道的成都火鍋店裝修效果呢?朗煜工裝公司從以下三個維度給大家做些詳細分析。
1、火鍋店裝修風格
為了還原地道的成都火鍋店裝修效果,在風格方面盡量選擇中式、古典、復古的裝修風格,尤其是霸氣的中式風格更是對地道成都火鍋店最好的詮釋。青磚、琉璃、硬木等不同材質的作品為空間帶來嚴謹穩重的視覺效果。

中式火鍋店裝修設計風格
2、火鍋店裝修布局
地道的成都火鍋店裝修會給人一種舒適、熱鬧的氛圍感,因此室內桌位之間要保持合適的間距,給人一種舒適、開闊的感覺。尤其是室內餐桌椅可以選擇長方形、正方形以及圓形相互配合,給顧客老成都的視覺感,木制的餐桌椅帶來陳舊的效果,使得空間復古感強烈。

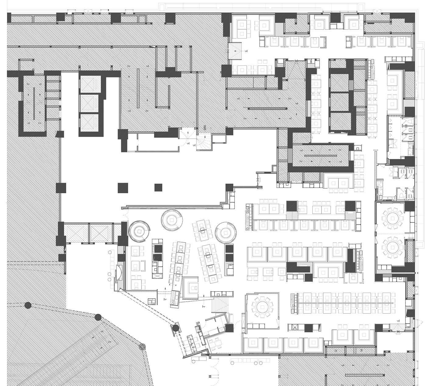
火鍋店裝修平面布局示意圖
3、火鍋店情懷設計
地道的成都火鍋店店面肯定融入了情懷的設計感,讓人一進入店內就能被深深感染。門口處可以通過水泥石柱進行打造,帶來視覺上的沖擊,再披掛上一些有歷史意義的標語;墻上通過竹椅、竹節、竹燥來打造古典美,點綴裝飾空間;室內通過一些情懷主義的裝飾物將氛圍感渲染的更加濃烈,加深顧客體驗感。